Bundesstraße 27Ersatzneubau Überführung Anschlussstelle Ludwigsburg-Süd

Zahlen & Fakten
Planungsstand: Ausführung
Vorhabenträger: Bund
Kosten: ca. 4 Mio. €
Baubeginn: 25.07.2024
Bauende: Herbst 2025
Aktuelles
Nach der Fertigstellung des westlichen Brückenteils wurde der östliche Teil der alten Brücke erfolgreich abgebrochen. Die Widerlager der neuen Brücke sind fertiggestellt. Aktuell laufen die Arbeiten am neuen Überbau, welcher größtenteils schon fertig betoniert ist.


Das Projekt
Auf dem Streckenabschnitt der B 27 zwischen Stuttgart und Ludwigsburg wird an der Anschlussstelle Ludwigsburg-Süd ein Ersatzneubau für das bestehende Brückenbauwerk hergestellt.
Dies ist aufgrund der Vielzahl der Schäden, der Tragfähigkeitsdefizite und des schlechten Allgemeinzustands des Bauwerks erforderlich.
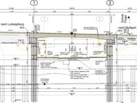
Das Brückenbauwerk überführt die B 27 an der Anschlussstelle Ludwigsburg-Süd über die Hohenzollernstraße. Die B 27 stellt eine wichtige Verbindung zwischen den Städten Stuttgart und Ludwigsburg dar und besitzt ein hohes Verkehrsaufkommen von rund 50.000 Kfz/24h. Insbesondere für den neuen Standort der Wüstenrot & Württembergischen sowie des Autokinos Kornwestheim ist die Anschlussstelle von großer Verkehrsbedeutung.
Mit der Baumaßnahme wird in erster Linie die Aufrechterhaltung des Verkehrs auf der B 27 sichergestellt. Darüber hinaus wird die Verkehrssicherheit und Leistungsfähigkeit des Streckenabschnitts deutlich verbessert. Durch den Ersatzneubau der Brücke wird zudem der Brückenbestand des Bundes modernisiert. Auch für etwaige künftige Ausbaumaßnahmen der Strecke ist der Abschnitt durch den Ersatzneubau gewappnet.
Im Zuge der Baumaßnahme wird ebenfalls der straßenbegleitende Geh- und Radweg entlang der Hohenzollernstraße ertüchtigt und bereichsweise verbreitert. Diese Arbeiten erfolgen für die Stadt Kornwestheim als Baulastträger des Geh- und Radwegs.
Beschreibung der Baumaßnahme
Im Jahr 2021 wurden im Rahmen der turnusmäßigen Bauwerksprüfung u. a. größere Schäden am Außensteg des Bestandsbauwerks festgestellt. Ursache hierfür war vermutlich Wasser, welches in den Hohlkörper des Stegs eingedrungen ist und den Querschnitt bei Gefrieren aufsprengte. Als Sofortmaßnahme wurden die Schadstellen mittels einer Stahleinfassung instandgesetzt. Ebenso erfolgten auf der B 27 verkehrliche Kompensationsmaßnahmen. Hier wurde in Fahrtrichtung Stuttgart die zulässige Höchstgeschwindigkeit auf 60 km/h reduziert und die Fahrstreifenbreite im Kappenbereich eingeengt.
Im Jahr 2022 folgte dann die beidseitige Unterstützung jedes Längsträgers mittels Schwerlaststützen, welche die Tragfähigkeit des Bauwerks bis zum Abbruch und Ersatzneubau sicherstellte.
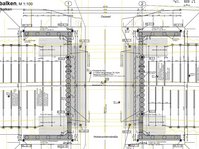
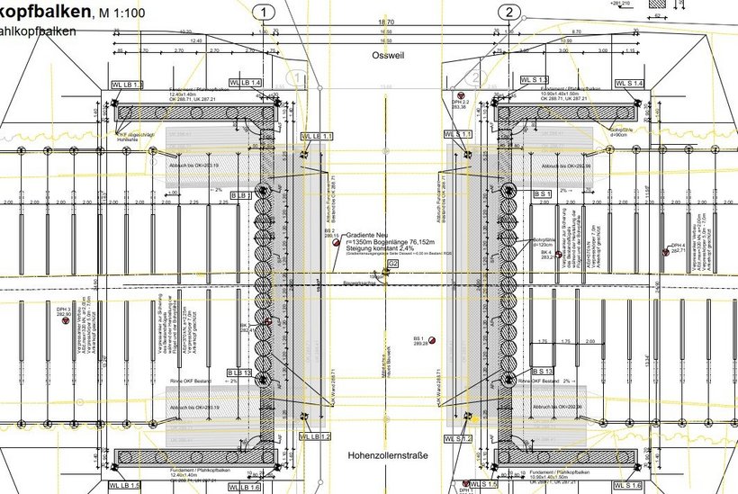
Der Brückenneubau erfolgt in Anlehnung an das bestehende Bauwerk als ein Rahmenbauwerk mit knapp 19 m Spannweite. Die Gründung der Brücke erfolgt auf ca. 20 m tiefen Pfählen.
Die Widerlager werden mithilfe dieser Bohrpfähle ausgebildet. Die Flügelwände sitzen auf Pfählen auf und werden über der Geländeoberkante als Ortbetonwände ausgeführt. Die Widerlagerwände gehen jeweils aus einer Bohrpfahlwand auf und im Bereich der Rahmenecken beigesteif in den Überbau über. Die Widerlagerwände werden nachträglich durch eine Vorsatzschale in Ortbeton „verkleidet“, sodass ein harmonisches Bauwerksbild entsteht.
Der Überbau wird je Seite etwa 4,70 m breiter, in Summe also gute 9 m. Für etwaige künftige Ausbaumaßnahmen der Strecke ist die neue Brücke somit gewappnet.
Der Bauablauf gliedert sich in insgesamt acht Bauphasen. Abbruch und Neubau erfolgen dabei getrennt je Fahrtrichtung. Der Verkehr fließt währenddessen auf der gegenüberliegenden Seite.
Der prinzipielle Bauablauf je Seite sieht wie folgt aus:
Zunächst wird die Einrahmung des Bestandsbauwerks aus rückverankerten Verbauwänden und Bohrpfahlwänden wie ein Kokon hergestellt. Im Schutze dieser Einrahmung kann das Bestandsbauwerk abgebrochen werden und, ebenfalls im Schutze dieser Einrahmung, wird das neue Bauwerk erstellt. Anschließend erfolgt der teilweise Rückbau der Einrahmung und die Verfüllung der Baugrube im Widerlager-bzw. Flügelbereich. Dann wird der Verkehr umgelegt und der gleiche Bauablauf auf der anderen Seite kann erfolgen.
Auf diese Weise kann zu jedem Zeitpunkt in jede Richtung mindestens ein Fahrstreifen für den Verkehr aufrechterhalten werden, was eine Mindestanforderung an die Planung aufgrund der großen Verkehrsbedeutung des Streckenabschnitts war.
Im Anschluss an die Brückenbaumaßnahme erfolgt abschließend eine Fahrbahndeckenerneuerung der B 27 zwischen der Anschlussstelle Kornwestheim-Nord und der Robert-Franck-Allee in Ludwigsburg.


Die vorliegende Baumaßnahme ist ein Pilotprojekt des Bundesministeriums für Digitales und Verkehr für die Anwendung von BIM in der Bauausführung. Building Information Modeling (kurz: BIM; deutsch: Bauwerksdatenmodellierung) beschreibt eine Arbeitsmethode für die vernetzte Planung, den Bau und die Bewirtschaftung von Bauwerken mithilfe von Software. Dabei werden alle relevanten Bauwerksdaten digital modelliert, kombiniert und erfasst. Das Bauwerk ist als virtuelles Modell dabei auch geometrisch visualisiert (Computermodell). Die BIM-Arbeitsmethodik wird sukzessive als Regelprozess bis 2026 auf Bundes- und bis 2027 auf Landesstraßen eingeführt und etabliert.
Die vorliegende Baustelle wird komplett digital abgebildet, verwaltet und abgewickelt. Dabei werden von der Ausführungsplanung des Bauwerks über die Logistikplanung der Baustelle, die Dokumentation und Abrechnung der Bauleistung, das Nachtrags- und Mängelmanagement bis hin zur Erstellung des „Wie-gebaut-Modells“ alle Prozesse digital in einem zentralen 3D-Modell geführt und abgewickelt. Alle Projektbeteiligten haben Zugriff auf eine gemeinsame Datenumgebung, auf der transparent kommuniziert werden kann und auf der Arbeitsstände, Informationen, Dokumente etc. ausgetauscht werden.
Die Baustellendokumentation erfolgt mittels einer voll-autonomen Drohne, welche die Baustelle mindestens einmal pro Woche selbstständig abfliegt und ein 3D-Modell des Status Quo erstellt – damit ist diese Baustelle eine von drei in Baden-Württemberg. Sowohl für den Auftraggeber als auch den Auftragnehmer ist dies ein hilfreiches Werkzeug, um den Baufortschritt transparent abbilden und überwachen zu können und die Effizienz bei der Bauabwicklung zu steigern.
Informieren Sie sich
Für die Bauarbeiten wird die Anschlussstelle Ludwigsburg-Süd mit Ausnahme der Einfahrt in Fahrtrichtung Stuttgart komplett gesperrt. Der Verkehr auf der B 27 kann durchweg aufrechterhalten werden.

Die Umleitung für den Verkehr zu Wüstenrot und zum Autokino aus Richtung Stuttgart kommend erfolgt einerseits über die B 27a bei Stuttgart-Stammheim und die Westrandstraße in Kornwestheim. Zusätzlich ist aber auch der Weg über die B 27 weiter nach Ludwigsburg und dort über die Friedrich- und Hohenzollernstraße möglich. Für den Fuß- und Radverkehr wird ebenfalls eine Umleitung ausgeschildert.
Fachinformationen
Regierungspräsidium Stuttgart
Referat 47.4 – Baureferat West
Industriestraße 5
70565 Stuttgart
baureferatwest@rps.bwl.de